高品质装修选美迪
十年后仍爱我家
24小时咨询热线
400-096-6088
快速报价
发布时间:2022-12-16
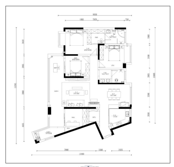
发布时间:2022-12-15
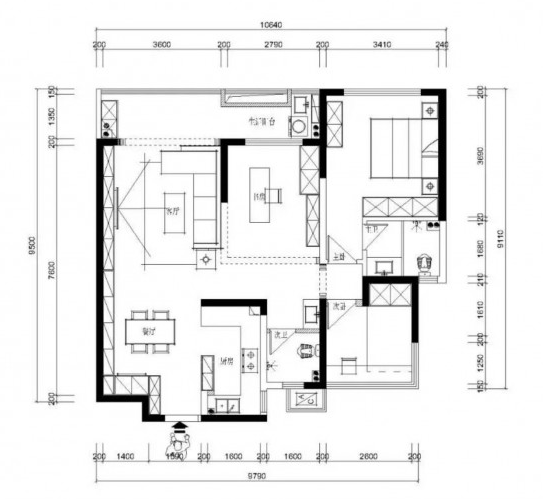
发布时间:2022-12-14
提交您的信息专业家装顾问1对1服务
免费领取热线: 0731-82197782