美迪装饰

高品质装修选美迪

十年后仍爱我家

  • 长沙 「切换」
    直营公司
    C 长沙

24小时咨询热线

400-096-6088

您的位置:美迪装饰 >家装案例 >长沙松雅湖金岸157㎡装修案例

长沙松雅湖金岸157㎡装修案例

246人喜欢 浏览人数:11637次 更新时间:2017-04-27 11:12:49
分享到:
案例风格  现代简约 案例户型  四室 案例面积 157㎡
楼盘名称 松雅湖金岸 装修形式 半包 案例造价
服务店面 总店 设计师 王丹 预约电话 0731-82197782

设计理念: 纯正的现代风格,色彩恬静而优雅,多采用发散光源现代人渐渐厌倦了呆板无生气的家居布局,渴望一种自由自在毫无拘束的环境,使自己能够从繁忙的工作,固定的生活模式中彻底解放出来,本套样板房的业主定位就是年轻的白领精英,他们追求时尚、事业有成,理性而不失生活情趣,他们需要区别于平常状态的居住概念,体现出浓厚的生活和工作的情趣。

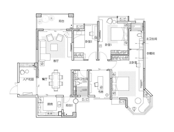
户型图
客厅
卧室

长沙松雅湖金岸150平装修案例-户型图

长沙松雅湖金岸150平装修案例-户型图

长沙松雅湖金岸150平装修案例-客厅

长沙松雅湖金岸150平装修案例-客厅

长沙松雅湖金岸150平装修案例-卧室

长沙松雅湖金岸150平装修案例-卧室

长沙松雅湖金岸150平装修案例-卧室

长沙松雅湖金岸150平装修案例-卧室

标签:  现代简约  四室

相似案例推荐

查看全部案例
免费

免费预约该设计师

提交您的信息领取定制方案

免费电话申请: 0731-82197782

申请户型规划即送1000元家装抵用券


免费获取报价