美迪装饰

高品质装修选美迪

十年后仍爱我家

  • 长沙 「切换」
    直营公司
    C 长沙

24小时咨询热线

400-096-6088

您的位置:美迪装饰 >家装案例 >长沙香樟景苑300㎡装修案例

长沙香樟景苑300㎡装修案例

297人喜欢 浏览人数:13606次 更新时间:2017-04-27 11:12:52
分享到:
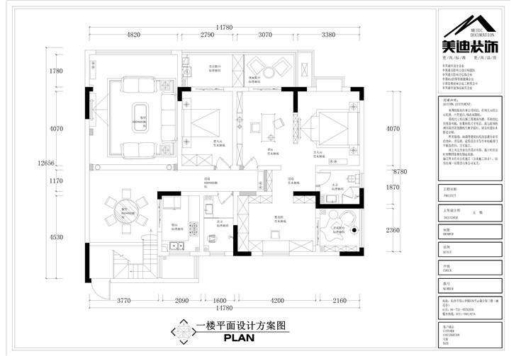
案例风格  美式 案例户型  别墅 案例面积 300㎡
楼盘名称 香樟景苑 装修形式 半包 案例造价 制安造价:26万元
服务店面 总店 设计师 文敏 预约电话 0731-82197782

设计理念: 设计说明:本作品以自然色调为主,大面积使用了石材及木质墙板,以浅色的壁纸,深色漆面,样式精致的家具,别致的小饰品,抽象油画,体现了随意的生活方式。摒弃了繁琐和奢华,并将不同风格中的优秀元素汇集整合,以舒适机能为导向,强调“回归自然”使居家变得更加轻松、舒适。突出了生活的舒适和自由,不论是家具,还是带有岁月沧桑的配饰,都散发着放松、自然、清新的色彩。

客厅
餐厅
过道
其他
厨房
卧室
卫生间
书房
外景

长沙香樟景苑300平装修案例-客厅

长沙香樟景苑300平装修案例-客厅

长沙香樟景苑300平装修案例-客厅

长沙香樟景苑300平装修案例-客厅

长沙香樟景苑300平装修案例-客厅

长沙香樟景苑300平装修案例-客厅

长沙香樟景苑300平装修案例-餐厅

长沙香樟景苑300平装修案例-餐厅

长沙香樟景苑300平装修案例-餐厅

长沙香樟景苑300平装修案例-餐厅

长沙香樟景苑300平装修案例-过道

长沙香樟景苑300平装修案例-过道

长沙香樟景苑300平装修案例-茶室

长沙香樟景苑300平装修案例-茶室

长沙香樟景苑300平装修案例-卧室

长沙香樟景苑300平装修案例-卧室

长沙香樟景苑300平装修案例-楼梯

长沙香樟景苑300平装修案例-楼梯

长沙香樟景苑300平装修案例-厨房

长沙香樟景苑300平装修案例-厨房

长沙香樟景苑300平装修案例-卧室

长沙香樟景苑300平装修案例-卧室

长沙香樟景苑300平装修案例-卧室

长沙香樟景苑300平装修案例-卧室

长沙香樟景苑300平装修案例-卫生间

长沙香樟景苑300平装修案例-卫生间

长沙香樟景苑300平装修案例-书房

长沙香樟景苑300平装修案例-书房

长沙香樟景苑300平装修案例-天台

长沙香樟景苑300平装修案例-天台

标签:  美式  别墅

相似案例推荐

查看全部案例
免费

免费预约该设计师

提交您的信息领取定制方案

免费电话申请: 0731-82197782

申请户型规划即送1000元家装抵用券


免费获取报价